本項目位于深圳南山高新北一道與科苑北路交叉路口西北側酷派大廈,是一個現代工業風設計公司辦公室裝修案例,其設計理念希望打造出集多種場景功能于一體的現代工業風酒廊式工作環境,在空間基調定位上設計師采用了中性暗調的配色,將整個空間的氛圍導向一種如會所般靜怡的格調,本案的設計理念也映射了現代青年創業者對追求嶄新工作方式的理解。暗藏燈光的裝飾手法在空間多處被應用,使得平面上多了一些層次,整個空間的地面鋪設采用了素色材質,和墻面的低飽和度的飾面相得益彰,使得空間上下得到延伸,香檳色的鏡面不銹鋼本身的高級質感也讓整個空間顯得更酷。

深圳南山現代工業風設計公司辦公室的入口處做了不同的燈光設計,充分的勾勒出了整個門頭形象及外立面的形態。

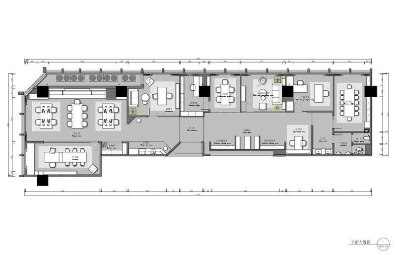
深圳南山現代工業風設計公司辦公室整體性和利用率做到了極致。

香檳金鏡面不銹鋼的藝術雕塑擺件映射出空間的魅力。

木飾面的護墻板讓空間變得更有溫度和品質。

經理辦公室的裝飾展示柜延續暗藏燈光的設計手法,兼具裝飾和照明作用。

深圳南山現代工業風設計公司辦公室主要通過玻璃隔斷分隔了整個空間。

深圳南山現代工業風設計公司辦公室的洗手間區域也在強調理性的質感與品味。

深圳南山現代工業風設計公司辦公室為使用者提供了輕松多元的工作環境。

香檳金不銹鋼的裝飾展示柜點綴時尚現代工業風的辦公空間樣貌。

高級灰的水泥藝術漆散發著神秘誘人的空間魅力。

混搭式的家具組合彰顯出現代工業風隨性的一面。

深圳南山現代工業風設計公司辦公室正在詮釋著空間藝術的含義。

深圳南山現代工業風設計公司辦公室創造出豐富架構。

深圳南山現代工業風設計公司辦公室讓秩序與自由同時得以實現。

深圳南山現代工業風設計公司辦公室充分調動了空間中的人的創作熱情與活力。

富有藝術性的雕塑陳設成為了總監辦公室空間里的點睛之筆。

開放式公共辦公區形成流暢的協作和互動。

寫意的工作洽談區讓使用者的部門之間沒有壁壘,更容易交流。

深圳南山現代工業風設計公司辦公室的設計提升了員工的幸福感。

氛圍感濃烈的過道空間讓員工在忙碌工作之余緩解眼睛疲勞換換心情。

簡單大方的家具組合透露出設計師的獨具匠心的設計思想。

現代工業風的辦公空間設計早已超越了設計本身。

茶水休閑區與羅馬立柱相結合,透露出現代工業風的混搭屬性。

深圳南山現代工業風設計公司辦公室的設計既保持了公司經營者踏實做事的匠心精神,也展現了公司一貫以來對美感的追求。

深圳南山現代工業風設計公司辦公室的會議室空間可同時容納8-10人開會使用。

深圳南山現代工業風設計公司辦公室的接待空間整體色彩和外部空間形成統一的調性。

深圳南山現代工業風設計公司辦公室—平面布置圖







