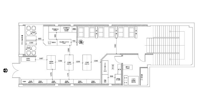
筍崗村小鎮面包店裝修設計,位于深圳市羅湖區筍崗村。面包店裝修面積120平方米。面包店采用深色的裝修,注重燈光設計,突出面包食品展示。采用暗紅色為主體設,紫羅蘭大理石,紫色的印花圖案,深色的鐵藝展架。面包店主營外賣,堂食比較少,只設置了4個堂食雅座。

地面鋪深色水泥質感防滑地磚,紫羅蘭大理石面包展臺。

面包展臺紫色印花圖案,古樸斑駁的木質屏風隔斷。

充滿鐵銹的大鐵門,黑色鐵藝的格子展柜,營造古樸的面包店裝修質感。

深灰色的水泥地面,面包展示區鋪貼花紋瓷磚,以對比強烈的不同材質劃分區域。

原天花頂噴黑色,保障天花高度,紅色鐵藝吊架裝飾,增強天花吊頂設計感。

面包店包含,收銀服務臺,中間面包展柜,墻邊展柜,堂食雅座。門口櫥窗。







