LE CYGNE在法語中意為“天鵝”,以童話般的故事,寄希望每個女孩都像天鵝一樣美得優雅從容。
▼項目概覽

美容護膚中心外立面裝修設計
設計結合品牌定位,打造「時尚,精致,專業」的品牌空間體驗。通過光與空間進行“光合作用”,營造LE CYGNE奢美曼妙的空間意境,進入真我世界,喚醒源源不絕的活力和女性魅力。

▼入口前廳

美容護膚中心大廳裝修設計
入口通過創造景深將視覺導入到空間,入口產品展示大廳,大面積白色與弧形門洞相疊加,穿梭進入旋轉光圈的弧形門洞,仿佛物質經過時間和空間的流轉而產生內在變化,猶如置身于一條通往美與蛻變的“時光隧道”, 留給人無限的想象與神秘感。空間以近乎純白色調擴容視覺,通過光影、材料、線條的相互關聯,體現多樣變化,同時將優雅和專業的雙重屬性賦予LE CYGNE。
▼墻面細部

▼接待臺桌面視角

▼接待臺桌面視角

▼入口區域

▼帶光圈的弧形門洞形成一條“時光隧道”

美容護膚中心入口裝修設計
入口門洞的兩側,則為一對一的咨詢區,通過流暢的線條將兩個空間相連接,體現一種柔美的張力。如搖滾音樂與爵士樂碰撞出了火花,在喧鬧的朋克之下,有著唯美之感。
▼從室內望向入口前廳

美容護膚中心大廳裝修設計
隧道盡頭的幻彩玻璃,折射出曼妙的光影。隨著光影進入純凈的大廳空間,白色的水磨石純粹而極致。沙發背后的拱形書架,延續弧線的設計元素,傾斜的造型,打破空間平衡,體現搖滾精神。美容包間內則通過靜謐的燈光設計,營造安靜柔美的空間氛圍,給予內心一份平靜,一刻的冥想,去尋找最真實的自我!

▼休閑區的拱形書架



美容護膚中心接待區裝修設計
LE CYGNE 天鵝童話,你可以在這里探尋真我,總有一個理由,喜歡的音樂,喜歡的生活方式,一杯咖啡,一本書籍,一份快樂,一份自信與美麗……
▼空間分隔

▼休閑區浴缸

▼咨詢區

▼軸測圖

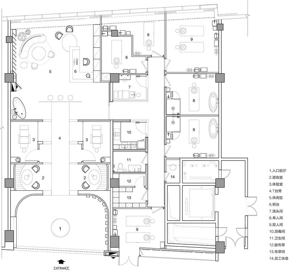
▼平面圖








