南山大沖商務中心科技辦公室裝修,設計師用解構的手法營造空間骨架,以東方的意境營造氛圍。在辦公空間的構成上,通過非對稱、錯位、穿插、懸空、縱貫等設計手法,運用模數分割法、天地墻對角、對縫,達到物斷韻連的展現效果,用少量的裝修材料和精致的工藝,體現物造的精髓和設計的價值。
大沖商務中心科技辦公室門廳裝修
作為一家科技公司的辦公室,這里不會僅僅只承載基礎的辦公功能,而是會在很大程度上去體現設計師對于當下和未來的設計方向的思考和觀點,并用這一實際的空間,去影響自己的員工和到訪的
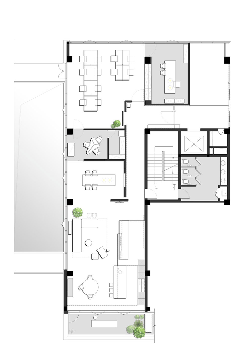
項目所在建筑是一幢二層的獨棟辦公樓,事務所位于建筑的二層,面積約300平米,三面采光,并擁有一個開放式的戶外陽臺。
新辦公室裝修以藝術為主線連接辦公與休閑功能,縮小工位在空間中的占比,擴大公共開放空間,提高生活化的配置,把品質生活體驗作為工作之余的調味,讓工作與生活和藝術交織在一起。

大沖商務中心科技園辦公室茶水間灰白色水吧臺

- 大沖商務中心科技辦公室深色過道
L型走廊本是最大的設計障礙,因為過道狹長而昏暗,解決方案是做一條不像過道的藝術走廊,用地打光與鏡面去模糊或者倒置空間。所以,墻面采用U型玻璃由下往上打光,并植入智能感應設備,當有人進入,光便會自動亮起。用光去迎接人,既有儀式感,又有親切感。
過道頂部是大面積的鏡面不銹鋼裝修設計,隨著空間上下延伸,恍惚之間,使人忘卻了置身空間之中。走過轉角,大片的光引導著方向,往里走,空間便慢慢地呈現,直至豁然開朗,室內的布置盡入眼簾,人的體驗感也油然而生。
100平米的開放式辦公空間構建一個會客、聚會、選樣、休閑的空間。多功能區位于空間南部,多維度的設計構成,錯落,疊加,鏡面等設計手法的應用,簡單的黑白灰呈現豐富的視覺構成,藝術、設計與生活的關系開始揭開面紗。
大沖商務中心科技辦公室休閑區沙發
第二處為廳中間的選型區,將其抬高呈方形,這兩個形狀也是組成空間最基礎的架構,而口字型抬高處恰好滿足客廳圍爐的壁爐之用,一舉兩得
大沖商務中心科技園辦公室白色吧臺中島臺具有多種功能,擺上材料,擺上模型;當它安靜地在那里,則是空間中安靜的休憩之地。
大沖商務中心科技辦公室白色吧臺黑色水吧柜
大沖商務中心科技辦公室茶水間白色吧臺效果圖
大沖商務中心科技辦公室茶水間白色集成板墻面裝修
空間中部是會議室,這里是設計師頭腦風暴的場所,也是給客戶提案的地方,有時候也充當設計總監的辦公桌。

- 大沖商務中心科技辦公室休閑的辦公區
空間北部則是簡潔的辦公區和會客茶室,功能化的設備,隱藏繁瑣的線條,設備掛件,讓整潔的辦公環境給人清晰的邏輯和輕松的氛圍。部分的暖色配置,削減黑白的冷硬,提點人內心的溫度。空間中的每一樣器物都來自于設計者的精心挑選,設計的美體現在物的形態與功能之中,生活中的器物,傳遞著人對生活的熱愛,所以它們歸屬于這個空間,又不僅僅只屬于這個空間;他們在歸屬于生活,又不僅僅只用于生活……站在藝術的角度,器物不只是器物,裝修設計也不只是設計。
壁爐的火焰跳動,如同輕盈的舞蹈,在黑夜里綻放光明,在寒冷中給予熱愛,而夜幕之下的陽臺上,溫潤的光散逸,將地面和墻面覆上一層朦朧的紗,河對面的大樓,有未熄的燈火,仿如星輝











3 Responses
I keep listening to the news talk about getting free online grant applications so I have been looking around for the top site to get one. Could you advise me please, where could i acquire some?
Hello very nice web site!! Man .. Beautiful .. Amazing .. I will bookmark your website and take the feeds also…I’m glad to find a lot of helpful information right here in the publish, we want develop more strategies on this regard, thanks for sharing.
It’s actually a great and helpful piece of information. I’m happy that you just shared this useful information with us. Please keep us informed like this. Thanks for sharing.