項目地點:深圳市龍華區大浪
設計理念:本案是一所混合型風格的美發店裝修設計案例,混合型風格是現在比較潮流的一種裝修風格,它將古今中西融合于一體。如:傳統屏風、擺設配以現代風墻面及門窗、沙發,給人一種時尚、與眾不同的感覺。而且混合型風格的裝修在設計中不拘一格,總能給人煥然一新的感受。

深圳龍華美發店大廳裝修設計
美發店大廳的裝修設計,采用混合型的風格理念,保持原始建筑風格的基礎上,直接刮白和軌道吊燈的應用,簡潔明了,富有工業感的氣息,整體實木地板和家具,顯示出溫馨的一面。

深圳龍華美發店頂面裝修設計
原結構頂面,只做簡單的乳膠漆刮白處理,燈線和缺口不做多余的不足,配上工業風鐵藝的小吊燈,在隨意中體現出自由,慵懶和個性狂野的設計特點。

深圳龍華美發店美發區裝修設計
一體式的美發臺,用小鏡子隔開來區分區域,最大限度的讓空間的使用率達到最佳的一個效果,同時讓整體看起更為直接和通透,有著干脆簡潔的時尚之風。

深圳龍華美發店前臺裝修設計
實木的前臺,美觀而不占用多余的空間,淺色的木紋和深色的地板作為一個對比,有非常好的色彩過渡之感,加上北歐式的書架和小黑板元素的應用,盡顯一派慵懶自由的情調。



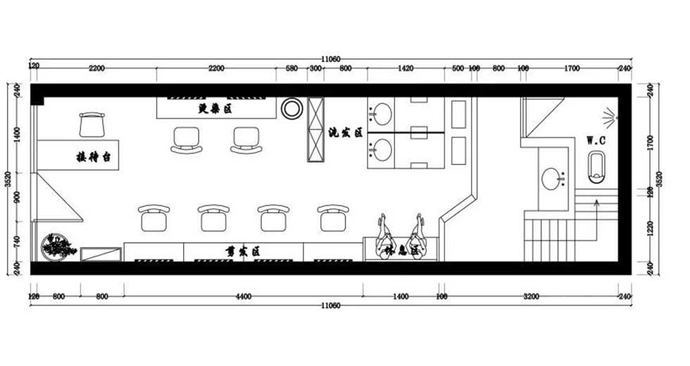
深圳龍華美發店平面布置圖
開闊式的設計,盡可能的使空間的利用率達到最大化,同時用工業感混合北歐風的設計理念,呈現出自己的品牌理念和特點。







