深圳南山簡約田園風日式餐廳裝修設計。本項目為深圳南山簡約田園風的日式餐廳設計案例,門頭使用灰色顆粒微水泥作為裝修主材進行著墨,搭配簡約的店鋪LOGO奠定了整個店鋪的初始基調。用餐區采用了簡約的一字型布局設計,圍墻使用乳白色日式原石作為外部與內部的隔斷,并形成了一個半開放空間。餐區的隔斷上方也采用白色的大理石紋石材,用材質分割出內外兩個不同功能的餐飲空間,既保證了食客的隱私性又給人一種神秘感。墻面和門頭都使用了較為粗糙的裝修材質,與光滑的磚紋地面、木質的隔斷和餐桌、黑色的單面玻璃相互對比,突出了大自然的痕跡,營造出一種城市中的田園感。進入店面有一個茶品展示柜,原木色的板材與乳白的石材相互搭配,燈光以及后現代風格的裝飾畫的加入,使得整體裝修不落入俗套,跳出了沉悶感,塑造出一種活躍之感,共同譜出了專屬于這家餐廳的交響曲。隱藏于城市的小店,在千篇一律的日式餐廳中設計出了自己獨特的巧思。

墻邊安裝裝飾窗,外加燈帶增加了整體照明,隔斷圍墻用微水泥做紋路,上部分用白色石材裝修。

單人就餐區適合一人食需求的客戶,是日式餐廳特色之一,黑色半隔斷的設計十分貼心。

窗戶處細節,窗框旁內嵌燈光,給人驚喜的感覺。

單人就餐區全景圖,隔斷和桌椅用原木色和乳白色墻面,和復古地面相搭配。

走廊處地面細節,地面和墻面使用同色系石材,整體協調統一。

餐廳進門入口通道放置了一個原木色茶品展示柜,便于顧客更清晰明了的了解店鋪茶品。

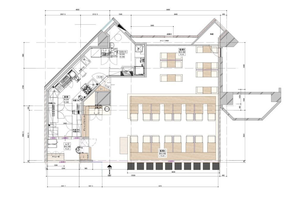
整體餐廳平面圖結構展示,整個項目呈現折角型,整體布局較為工整。

墻面突出裝飾框,內部嵌有裝飾畫,采用粗糙材質,底部用燈帶襯托。

餐廳外立面墻面細節,鐘乳石侵蝕紋理,營造出自然古樸的感覺。

餐廳門頭以灰白色和原木色為主要設計色調,門頭使用混凝土墻面搭配簡約LOGO。







