本項目位于深圳南山區西麗龍珠大道與南平快速干道交匯處北側香瑞園,是一個簡約風格別墅裝修案例。整棟別墅坐落于高低起伏的坡路之間,在室內起居空間與室外地理環境的連接中勾勒出一種錯落的美感。負一樓與戶外花園相通,放眼望去,滿眼蔥郁。 設計師對空間進行了合理的優化與改造,將清雅別致的家庭廳與簡潔明快的西廚貫通一體,大氣舒朗。自然光從門外肆意灑落進來,更增室內的開闊通透之感。墻上掛畫藝術品勾勒女性的自然線條,為空間添以藝術筆觸。 凈潔的廚餐廳開敞簡約,金屬網編織的吊燈極具質感,仿若薄如蟬翼的花瓣聚攏綻放,托出中心的金色花蕊,營造出輕盈別致的姿態。

深圳南山區西麗簡約風格別墅裝修—1層會客廳
深圳南山區西麗簡約風格別墅裝修—負1層客廳

深圳南山區西麗簡約風格別墅裝修—負1層西廚
深圳南山區西麗簡約風格別墅位于一樓的客廳汲取古典對稱之美,打造出屬于自己的空間秩序。
無論磚石還是金屬飾物,都有著考究精致的的紋理,一絲不茍。亭亭玉立的木槿花枝搖曳,姿態柔美,靈動而富于生氣,將現代典雅的家烘托得清雅婉轉,靜穆自然之中彌漫著動人的生命力。

高大的落地玻璃窗,將自然光線一覽無遺地引入到室內,使室內可以酣暢沐浴自然光線的饋贈,高大開敞的空間格局,讓處在其中的人也獲得了一種開闊爽朗的心境。

深圳南山區西麗簡約風格別墅裝修—1層會客廳家具組合

深圳南山區西麗簡約風格別墅裝修—1層會客廳中空吊頂

深圳南山區西麗簡約風格別墅裝修—1層會客廳休閑區
會客廳中醒目的意大利扶手椅,莊重典雅,彰顯著業主獨特的品味。

深圳南山區西麗簡約風格別墅裝修—1層茶室

深圳南山區西麗簡約風格別墅的開放式茶室,與會客廳連通,選用質感十足的黑金作為主色調,營造一方愜意的品茗修心之地。
精美的藝術畫作在色系上與整個空間相呼應,畫面的動感使空間的韻律別具一格。

同樣位于一樓的家庭廳,在色塊的選用與比例上頗具匠心,紅色的單椅沙發顯得格外亮眼。金毛狗蕨盆栽氤氳著“山抹微云”的古典意境。

深圳南山區西麗簡約風格別墅裝修—1層家庭廳
在空間中構筑出現代雅致的空間意向,著以自然之色,醞釀盎然生機。

深圳南山區西麗簡約風格別墅裝修—2層玄關端景臺
深圳南山區西麗簡約風格別墅裝修—2層玄關
深圳南山區西麗簡約風格別墅的兒童房充分考慮到孩子的身心發展特點,選擇特定的色彩與家具,在一些個性化的設計上頗具趣味性,用心呵護孩子的成長。將原有的封閉式樓頂,開出一口天井,線條干練有力,讓外部光線自然傾瀉下來,照亮室內,使整個空間都獲得了自在的呼吸之柱。

深圳南山區西麗簡約風格別墅裝修—天井
深圳南山區西麗簡約風格別墅主臥空間大面積的灰色運用,營造出臥室的靜斂氛圍,并為安靜的休憩提供了保障。清新綠植的點綴,讓整個空間都變得活力流動起來。

深圳南山區西麗簡約風格別墅裝修—主臥
整個書房融入傳統的審美意境,墨香盈室。喜愛讀書、練字、畫畫的業主在這里仿佛找到了一片精神的憩息之所,在這里可以潛心靜書,將陶冶性情的詩意生活凝結在舒展萬變的線條之美中。

深圳南山區西麗簡約風格別墅裝修—書房休閑區
深圳南山區西麗簡約風格別墅裝修—負1層平面布置圖
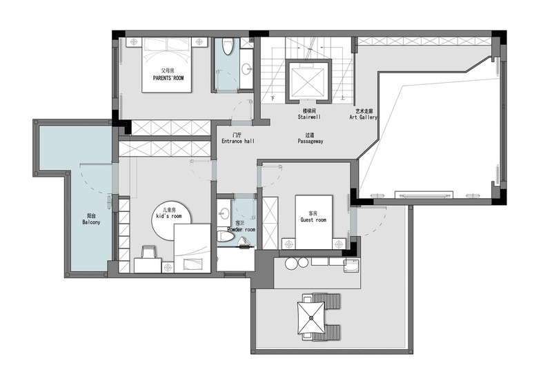
深圳南山區西麗簡約風格別墅裝修—1層平面布置圖
深圳南山區西麗簡約風格別墅裝修—2層平面布置圖
深圳南山區西麗簡約風格別墅裝修—3層平面布置圖







