安靜,能增加人們的智慧;安靜,更能讓人們深入思考。河源唯實商學院在培訓學校裝修設計上就將安靜運用到了實處。它的內部空間顏色渲染,以白色、黑色和灰色為主,通過不同造型的空間構造,給人們帶來了一種安靜的學習氛圍和學習的安靜感覺。而在空間內部格局上,河源唯實商學院在培訓學校裝修設計上顯得尤為不同,其有的通過玻璃窗的傾斜,有的多邊形的以大理石磚的隔斷,有的則生生在空間中另套空間的方式,將整個內部空間變得富有奇幻和科技的色彩,人們在其中學習或深造,自然而然也在這樣的環境中慢慢地增加了智慧,更增添了對學習的興趣。除此之外,還有多媒體教室的獨特構建,更給人身在學海書山的境界中,頗有讓人耳目一新的感覺,十分受到學生們的歡迎。

河源唯實商學院教室裝修設計,旋轉樓梯水磨石鋪地,比較防滑防潮。

河源唯實商學院學校裝修設計大門門廳。

河源唯實商學院學校裝修設計,樓梯旁邊設置鋼化玻璃扶手

河源唯實商學院學校裝修設計石材圓桌

河源唯實商學院裝修設計樓梯

河源唯實商學院學校裝修設計,過道地面鋪仿木紋地磚,黑色鐵絲網天花。

河源唯實商學院學校裝修設計

河源唯實商學院裝修設計,不銹鋼玻璃大門,具有創意的休息椅。

河源唯實商學院學校裝修設計,鋼化玻璃欄桿。

河源唯實商學院裝修設計,共享空間。

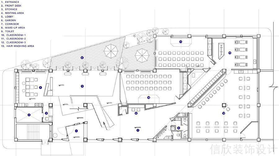
河源唯實商學院學校裝修設計,平面圖。

河源唯實商學院學校裝修設計,走道地面鋪仿木紋地磚,黑色鋁框玻璃隔斷。

河源唯實商學院學校裝修設計,結構圖。

河源唯實商學院學校裝修設計,樓梯旁邊黑色石材扶手。

河源唯實商學院學校裝修設計,食堂地面灰色水磨石, 造型天花設計燈帶裝飾。

河源唯實商學院學校裝修設計,二層平面圖。

河源唯實商學院學校裝修設計,黑色鐵絲網天花,地面水磨石裝飾。

河源唯實商學院學校裝修設計,大廳設計麻石地面,麻石接待臺。







