廣東省福田云泰辦公室裝修設計,工程位于廣東省,由信欣裝修公司設計。裝修設計范圍共5層,每層1800平方米。一樓包括大堂裝修設計、展廳裝修設計門廳裝修設計、倉庫等。十三 樓是辦公室,包括領導辦公室、經理辦公室、會議室裝修等。十四樓是員工餐廳,包括廚房裝修設計、餐廳裝修設計、包房裝修設計。主要用于員工就餐和接待客戶。十五樓是頂層,包括影視廳裝修 設計、健身房裝修設計、會客廳裝修設計、休閑茶吧裝修。

福田云泰辦公室裝修設計_休息區裝修
福田云泰辦公室裝修設計_休息區裝修,地面鋪深灰色地毯,大理石開凹槽制作花臺,墻面貼條紋墻紙,天花石膏板造型吊頂,開橢圓形中間做鋁合金格柵天花。

福田云泰辦公室裝修設_報告廳裝修
福田云泰辦公室裝修設_報告廳裝修,地面鋪灰色地毯,墻面貼木紋飾面板,主席臺背景做軟包,石膏板天花留燈槽。

福田云泰辦公室裝修設計_會議室裝修
福田云泰辦公室裝修設計_會議室裝修

福田云泰辦公室裝修設計_十三樓平面圖
福田云泰辦公室裝修設計_十三樓平面圖,包括領導辦公室、會議室、秘書室等。

福田云泰辦公室裝修設計_經理室裝修
福田云泰辦公室裝修設計_經理室裝修,地面鋪米黃色地毯,木條等距離排列做沙發背景裝飾,石膏板天花開凹槽安裝孔燈。經理背景墻面做黃色軟包。

福田云泰辦公室裝修設計_健身房裝修
福田云泰辦公室裝修設計_健身房裝修,地面鋪米黃色木紋地板,長條鋁合金方通做格柵天花,石材貼面做成花臺。

福田云泰辦公室裝修設計_財務室裝修
福田云泰辦公室裝修設計_財務室裝修,地面鋪貼花紋地毯,墻面貼暗花紋墻紙,天花方塊礦棉板天花,安裝配套燈盤。大面積文件柜以裝放文件。

福田云泰辦公室裝修設計_會客室裝修
福田云泰辦公室裝修設計_會客室裝修,地面鋪貼黃色厚毛地毯,一超寬活動門做活動隔斷,木雕花屏風隔斷。

福田云泰辦公室裝修設計_展廳裝修
福田云泰辦公室裝修設計_展廳裝修,木夾板制作展臺噴米黃色烤漆,天花安裝射燈做展臺照明。

福田云泰辦公室裝修設計_餐廳裝修
福田云泰辦公室裝修設計_餐廳裝修,地面鋪貼黃色花紋地毯,天花貼暗花墻紙,安裝工藝吊燈,中式木格子屏風。

福田云泰辦公室裝修設計_會客室裝修
福田云泰辦公室裝修設計_會客室裝修,地面鋪條紋地毯,沙發背景裝密度板雕花噴漆,天花裝工藝吊燈裝飾。

福田云泰辦公室裝修設計_電梯間裝修
福田云泰辦公室裝修設計_電梯間裝修,米黃色拋光磚和深灰色拋光磚相間鋪貼地面,墻面貼仿古磚,左側墻面貼工藝玻璃,石膏板造型天花暗藏燈槽。

福田云泰辦公室裝修設計_衛生間裝修
福田云泰辦公室裝修設計_衛生間裝修,米黃色拋光磚和黑金砂大理石相間鋪貼,米黃大理石臺面安裝白色洗手盆。

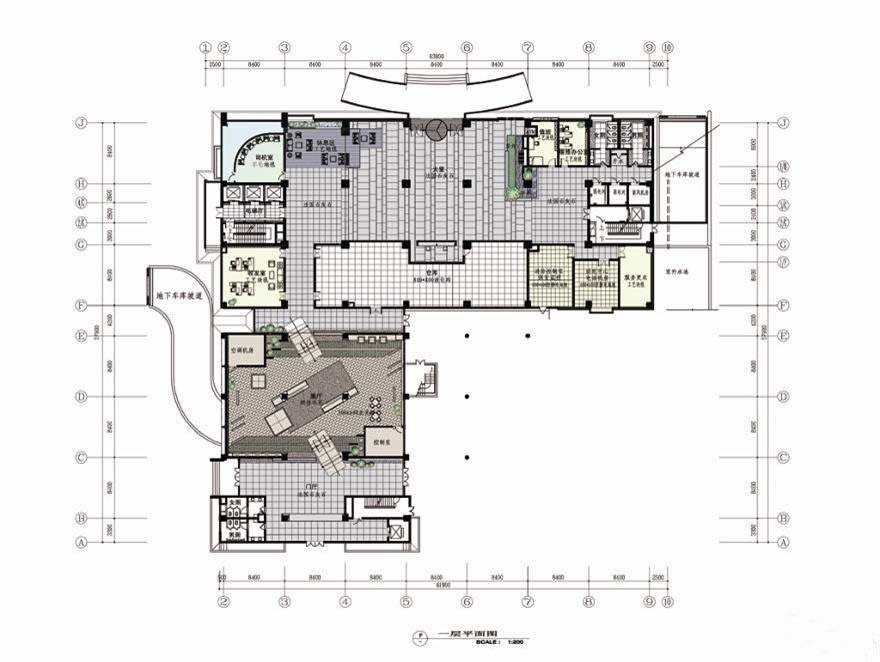
福田云泰辦公室裝修設計_一樓平面圖
福田云泰辦公室裝修設計_一樓平面圖,包括大堂、展廳、休息間裝修等

福田云泰辦公室裝修設計_餐廳裝修
福田云泰辦公室裝修設計_餐廳裝修,地面鋪深黃色暗花紋地毯,墻面木條飾面,流線型的天花暗藏燈光帶。

福田云泰辦公室裝修設計_大堂裝修
福田云泰辦公室裝修設計_大堂裝修

福田云泰辦公室裝修設計_花園裝修
福田云泰辦公室裝修設計_花園裝修

福田云泰辦公室裝修設計_大堂裝修
福田云泰辦公室裝修設計_大堂裝修

福田云泰辦公室裝修設計_餐廳裝修
福田云泰辦公室裝修設計_餐廳裝修

福田云泰辦公室裝修設計_會客室裝修
福田云泰辦公室裝修設計_會客室裝修

福田云泰辦公室裝修設計_會客室裝修
福田云泰辦公室裝修設計_會客室裝修

福田云泰辦公室裝修設計_會議室裝修
福田云泰辦公室裝修設計_會議室裝修

福田云泰辦公室裝修設計_十五層平面圖
福田云泰辦公室裝修設計_十五層平面圖

福田云泰辦公室裝修設計_十四層平面圖
福田云泰辦公室裝修設計_十四層平面圖

福田云泰辦公室裝修設計_會客室裝修
地面褐色花紋地毯,中式大吊燈,珠簾

福田云泰辦公室裝修設計_辦公區裝修
鋁合金沖孔板天花,灰色方塊地毯

福田云泰辦公室裝修設計_大堂裝修
定制鋁合金扣板天花,大理石形象墻。米白色拋光磚地面。

福田云泰辦公室裝修設計_餐廳客房裝修
客房地毯鋪地,天花貼深色花紋墻紙。

福田云泰辦公室裝修設計_花園裝修
灰色防滑磚工字鋪貼,鋁合金長條形格柵天花。

福田云泰辦公室裝修設計_辦公室裝修
灰色方塊地毯,沖孔鋁合金扣板天花

福田云泰辦公室裝修設計_客房裝修
福田云泰辦公室裝修設計_客房裝修







